Language
日本語 English 简体中文 繁體中文 한국어

客房

客房

当前页面
GRANBELL HOTEL OTARU >客房>转角套房

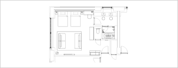
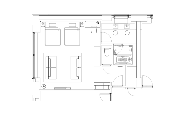
转角套房

转角套房空间宽敞,配备沙发床,最多可容纳四位客人,是家庭或团体出行的理想之选。您可尽享转角房独有的宁静与私密。

基本信息
宽度 54㎡
床宽 120cm×2张+沙发床×2张
定员 4名
备注 全部房间禁烟

布局图

放大布局图

预约这个房间

全部客房共通设备

电视 (可上网) /高速网络免费 (Wi-Fi) /冰箱/电热水壶/电话机/保险柜/吹风机/衣架/枕边插座/温水洗净马桶/梦幻床公司制床“Serta”/AI智能音箱/独立空调

洗漱用品

浴巾/牙刷/洗发水/护发素/沐浴露/发刷/剃须刀/剃须膏/拖鞋/晚装/儿童洗漱用品(牙刷、拖鞋、睡衣)

※晚装备有3种尺寸。
(L:125cm、S:120cm、儿童:84cm)
因尺寸规格,实物可能会略有差异。

出租备品 (免费)
※数量限定

轮椅/裤线热压机/空气净化器/加湿器/熨斗/烫发器 (直发卷发) /充电器

检入检出

入住... 15:00/退房... 11:00

信用卡

我们接受VISA、JCB、万事达卡、AMEX、UC、DC、NICOS、Diners Club和UnionPay。其他卡种请联系酒店咨询。

取消

根据本酒店的住宿条款,从住宿基本费用中收取前一天20%、当天80%、不住宿100%的取消费用。但是,根据方案的不同,取消规定也会有所不同。请确认各套餐的详细内容。

设备和服务

客房一览表

返回页首

+81-134-64-7573