Language
日本語 English 简体中文 繁體中文 한국어

客房

客房

当前页面
GRANBELL HOTEL OTARU TOP >客房>无障碍

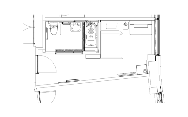
无障碍客房

无障碍客房位于2楼和3楼。 房间内的台阶被消除,老年人和轮椅使用者可以舒适地度过时光。 浴室和卫生间均配有扶手,这间客房采用无障碍设计,任何人都可以安心使用。 您还可以在床下的空间中存放手提箱和其他物品。

基本信息
宽度 21㎡
床宽 110cm×1张+沙发床
定员 2名
备注 全部房间禁烟

布局图

放大布局图

预约这个房间

全部客房共通设备

电视 (可上网) /高速网络免费 (Wi-Fi) /冰箱/电热水壶/电话机/保险柜/吹风机/衣架/枕边插座/温水洗净马桶/梦幻床公司制床“Serta”/AI智能音箱/独立空调

洗漱用品

浴巾/牙刷/洗发水/护发素/沐浴露/发刷/剃须刀/剃须膏/拖鞋/晚装/儿童洗漱用品(牙刷、拖鞋、睡衣)

※晚装备有3种尺寸。
(L:125cm、S:120cm、儿童:84cm)
因尺寸规格,实物可能会略有差异。

出租备品 (免费)
※数量限定

轮椅/裤线热压机/空气净化器/加湿器/熨斗/烫发器 (直发卷发) /充电器

检入检出

入住... 15:00/退房... 11:00

信用卡

我们接受VISA、JCB、万事达卡、AMEX、UC、DC、NICOS、Diners Club和UnionPay。其他卡种请联系酒店咨询。

取消

根据本酒店的住宿条款,从住宿基本费用中收取前一天20%、当天80%、不住宿100%的取消费用。但是,根据方案的不同,取消规定也会有所不同。请确认各套餐的详细内容。

设备和服务

客房一览表

返回页首

+81-134-64-7573